施工概要
| 施工箇所 | フルリフォ-ム |
|---|---|
| 費用 | 600~650万円程度 |
| 施工期間 |
約1か月半 |
| 施工地 | 札幌市厚別区 |
| 施工内容 |
・水廻り4点交換 ・床材フロ-リングに変更 ・壁,天井クロス交換 ・建具交換 ・和室から洋室に変更 ・カーテン |
| 施工依頼の経緯 | 経年劣化があり長く住む為にフルリフォ-ム希望 |
施工のこだわり
経年劣化の為この先長く住む為にフルリフォ-ムを検討
内窓も交換し窓リノベと水廻りは札幌住宅エコリフォ-ム補助金を活用。
間取りはならべく変更しないで気になっている所は変更するという方向で進みました。

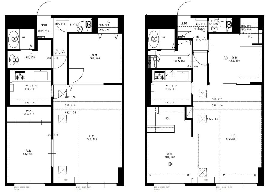
Before After
【玄関】
玄関収納を壁に固定し浮かせて設置したので収納下の掃除も可能
玄関床は長尺シ-トを上から貼り綺麗にしました。
【トイレ】
壁照明の掃除が気になっていたとのことでしたので天井照明に変更。
【ホール】
ホールから寝室へすぐいけるよう引戸設置し
すぐコ-トやカバンを掛けれるようになりました。
【UT】
以前はリビング外でしたので
リビング側に設置することにより夏場のエアコンや冬場の暖房が
少しでも脱衣室に流れるようにリビングドアの位置を調節しました。
洗面横にはニッチを追加、洗濯機上に棚2段,物干しパイプも追加しました。
アクセントに一部壁クをパープル色クロスを使用。
【キッチン】
レンジフ-ドを交換したばかりとのことでしたので
その他を一新しました。食洗機はビルトインと迷われてましたが
使用頻度と今後の交換する場合の費用を検討され
今まで使用していた置き型の食洗機の使用を採用することに。
シンクを寄せ設置出来るスペ-スを確保しました。
壁は今までタイルでしたがキッチンパネルに変更しました。
【和室】
和室は段差をなくし畳からフロ-リングへWCLも追加
旧和室は基本オ-プンにしてることが多いみたいなので
必要であればカーテンで仕切る為にレールを設置しました。
【リビング】
オープン可動棚には書類や配線のごちゃごちゃ
が見えないように一番上の棚にはルータ-設置。
将来的には一番下に充電器を置きルンバを設置予定なのでコンセントを設置。
ホスクリ-ンを和室も含めると3箇所設置し
天気が悪い時や冬でも中でシーツ等も干せる余力を持ちました。
テレビ設置面クロスは少しアクセントに
ナチュラルで落ち着く色を選定されました。
【寝室】
ホ-ルから一番近いお部屋が寝室で以前は折れ戸の間仕切りでしたが
2枚引き戸にい開けていても扉が邪魔にならないようにし
レ-ルレスにし掃除しやすい建具を選定しました。
WCLは気になる場合はカーテンで仕切る用に天井にレールを設置
ベッド横にもホスクリ-ンを設置したのでこちらにも物干しスペ-スを確保。
【クロス】
空間ごとに使用してみたい好きな色を選定し
リビングからみた時に全てのクロスが目に入るのでカラフルの中にも
調和するよう配色は選定しました。
箇所ごとにカラフルで可愛かったです。
リフォームをお考えの方へ
今のお住まいについて、何かお悩みやご相談されたいことはございますか?

お見積り希望など、
どんなことでもお問い合わせください。
リフォームのプロフェッショナルである
当社担当者が、分かりやすく回答致します。
対面でのご相談(スタッフが訪問します)や、
オンライン相談(ZOOMやラインを使った
ご相談)のご予約も承っております。
電話・LINE・メールでもお問合せ可能です。
リフォーム対応地域
札幌市、札幌市近郊
(小樽市・石狩市・江別市・北広島市)
電話でご相談・お問い合わせ
電話受付 011-890-1024
受付時間 9:00~17:00 / 土日祝休
LINEでご相談・お問い合わせ























































